一、气动法兰闸阀 产品概述
|
上海霜恒阀门有限公司生产的气动法兰闸阀Z641H配有气动执行机构和手动机构,闸阀执行器采用双层气缸结构,它与单气缸式气动闸阀相比,提升力增大了一倍,解决了单气缸式气动闸阀的某些阀板在阀体内楔死而打不开的弊病,具备缓冲机构,能有效地减轻关闭阀门时由于活塞下行冲击而造成的阀板密封面和阀体密封面的磨损,同时也能避免闸板卡死的现象。气动法兰闸阀可以配用电的或气的回讯器,用以发送阀门开关状态信息。可以实现远距离控制,集中控制和自动控制。性能可靠、操作切换和维修方便等特点。已被石油、化工、海运等部门广泛用于对各类介质控制。
|
|
|
Z641H气动法兰闸阀
|
二、气动法兰闸阀 主要技术参数
|
公称通径DN(mm)
|
50
|
65
|
80
|
100
|
125
|
150
|
200
|
250
|
300
|
350
|
400
|
450
|
500
|
600
|
700
|
800
|
|
公称压力
|
1.6、2.5、4.0、6.4MPa
|
|
阀体材质
|
304、316、316L、.WCB、HT200
|
|
使用温度
|
-29~425℃(碳钢)-、0~+550℃(不锈钢)
|
|
连接法兰
|
JB/T79、GB913、HG20592
|
|
适用介质
|
空气、水、蒸汽、油及硝酸、醋酸等腐蚀性流体
|
|
作用方式
|
切断型、调节型、手动控制
|
|
电源电压
|
220VAC、380VAC
|
|
配置执行器
|
DZW系列多回转电动执行器
|
|
控制方式
|
开关量控制、模拟量控制
|
三、气动法兰闸阀 执行器参数
|
电源电压
|
380V,50Hz、控制线电压220V/50Hz(特殊订货60Hz)、远程控制电压24VDC。
|
|
环境温度
|
-20~+60℃ (特殊订货-60—+80℃)
|
|
相对温度
|
≤90%(25℃时)
|
|
防护等级
|
户外型和防爆型为IP55 (可订制IP67)
|
|
工作制
|
为短时10分钟 (可订制30分钟)
|
1、电源:电机为三相交流,380V(特殊订货660V、440V或220V),50Hz(特殊订货60Hz);控制线电压220V/50Hz(特殊订货60Hz);远程控制电压24VDC。
2、环境温度:-20—+60℃(特殊订货-60—+80℃)
3、相对温度:≤90%(25℃时)
4、普通型和户外型用于无易燃/易爆和无腐蚀性介质的场所;防爆型产品有dⅠ和dⅡBT4两种,dⅠ适用于煤矿非采掘工作面;dⅡBT4用于工厂,适用于环境为ⅡA、ⅡB级T1-T4组的爆炸性 气体混合物。(详见GB3836.1)
5、防护等级:户外型和防爆型为IP55(可订制IP67)。
6、工作制:为短时10分钟(可订制30分钟)。
四、气动法兰闸阀 零件材料
|
阀体、阀盖、阀板
|
铸钢
|
|
阀体及闸板的密封面
|
合金钢
|
|
阀杆
|
不锈钢
|
|
双头螺栓
|
35号钢
|
|
气缸
|
20号无缝钢管
|
|
活塞
|
铸铝合金
|
|
手动螺母
|
青铜
|
|
密封圈
|
石棉橡胶板、缠绕式金属石墨垫片
|
|
活塞环及轴环
|
耐油橡胶○型圈
|
|
填料函
|
石墨石棉绳
|
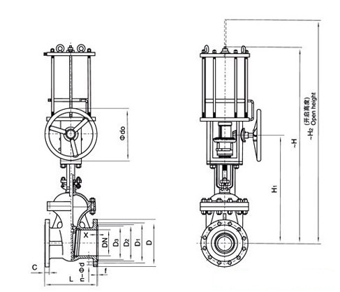
五、气动法兰闸阀 外形尺寸图
六、气动法兰闸阀 外形连接尺寸
|
DN/PN16
|
L
|
D
|
D1
|
D2
|
b
|
z×Φd
|
H
|
D0
|
重量/kg
|
|
50
|
250
|
160
|
125
|
100
|
16
|
4×Φ18
|
875
|
240
|
60
|
|
80
|
280
|
195
|
160
|
135
|
20
|
8×Φ18
|
970
|
240
|
81
|
|
100
|
300
|
215
|
180
|
155
|
20
|
8×Φ18
|
1025
|
240
|
98
|
|
150
|
350
|
280
|
240
|
210
|
24
|
8×Φ23
|
1365
|
280
|
190
|
|
200
|
400
|
335
|
295
|
265
|
26
|
12×Φ23
|
1650
|
320
|
252
|
|
250
|
450
|
405
|
355
|
320
|
30
|
12×Φ25
|
1950
|
320
|
316
|
|
300
|
500
|
460
|
410
|
375
|
30
|
12×Φ25
|
2010
|
400
|
514
|
|
350
|
550
|
520
|
470
|
435
|
34
|
16×Φ25
|
2260
|
400
|
690
|
|
400
|
600
|
580
|
525
|
485
|
36
|
16×Φ30
|
2540
|
500
|
970
|
|
DN/PN25
|
L
|
D
|
D1
|
D2
|
b
|
z×Φd
|
H
|
D0
|
重量/kg
|
|
50
|
250
|
160
|
125
|
100
|
16
|
4×Φ18
|
875
|
240
|
60
|
|
80
|
280
|
195
|
160
|
135
|
20
|
8×Φ18
|
970
|
240
|
81
|
|
100
|
300
|
230
|
190
|
160
|
24
|
8×Φ18
|
1085
|
400
|
150
|
|
150
|
350
|
300
|
250
|
218
|
30
|
8×Φ23
|
1347
|
400
|
215
|
|
200
|
400
|
360
|
310
|
278
|
34
|
12×Φ23
|
1810
|
400
|
320
|
|
250
|
450
|
425
|
370
|
332
|
36
|
12×Φ25
|
2070
|
400
|
400
|
|
300
|
500
|
485
|
430
|
390
|
40
|
12×Φ25
|
2580
|
500
|
790
|
|
350
|
550
|
550
|
480
|
448
|
44
|
16×Φ25
|
2723
|
560
|
940
|
|
400
|
600
|
610
|
550
|
505
|
48
|
16×Φ30
|
2985
|
560
|
1070
|
注:表中尺寸为不带标准附件数据。另由于产品改进技术创新参数可能有一定变化,请咨询公司技术部门索取最新数据。